Spekman Panduan Merekabentuk Pendawaian Elektrik Di Rumah
Sains Ting 3 Kssm I Bab 6 Elektrik Kemagnetan I 6 3 Penghantaran Pengagihan Elektrik I Bah 2 Youtube
8 4
Pendawaian Elektrik Rumah Kediaman Asas Elektrik
Pendawaian Elektrik
Bab 8
Pemasangan Pendawaian Elektrik Di Rumah Kayu
5 Sistem Bekalan Elektrik Latest
Belajar Wiring Elektrik 1 Phase 3 Phase Download Ebook Asas Pendawaian Elektrik Pdf
Blog Elektrik Pendawaian Elektrik
Tingkatan 3 Sains Pt3 Komponen Keselamatan Dalam Sistem Pendawaian Peralatan Di Rumah Youtube
Pendawaian Elektrik Dari Sokongan Langkah Tangan Sendiri Dengan Skim Langkah Pendawaian Sendiri
Bab 8 Penjanaan Elektrik Generation Of Electricity Pdf Download Gratis
Bteks Bab 6 3 Penghantaran Dan Pengagihan Tenaga Elektrik Compress Pages 1 12 Text Version Anyflip
Pemasangan Db Tiga Fasa
Wiring
Litar Elektrik Pangsapuri Projek Dan Pemasangan Pendawaian Elektrik Di Apartmen Pembaikan 2020
Litar Pendawaian Elektrik Blog Penyejukan Penyamanan Udara
Pendawaian Elektrik Di Apartmen Projek Pengiraan Pemasangan Pembaikan 2020
Pemanas Air Elektrik Sejurus 56 Gambar Pemasangan Pemanas Air Di Apartmen Ulasan
Panduan Merekabentuk Pendawaian Elektrik Di Rumah
Sistem Pendawaian
Pendawaian Elektrik Assignmet
Pt Sains 55 Kertas Model Ppd Pasir Gudang Set 7 Pentaksiran Tingkatan 3 Ujian Bertulis Pdf Free Download
1
Pdf Spesifikasi Bekalan Elektrik Apple Crystal Academia Edu
Video Pemasangan Kotak Fius Agihan 1 Fasa Youtube
Kakilapan Sistem Pembumian Elektrik Di Malaysia
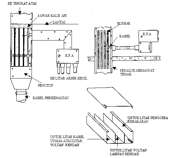
Pengenalan Kepada Pepasangan Sesalur Tetingkat Riser Nota Kejuruteraan Teknologi Elektrik Vokasional Politeknik Ikm Ilp Universiti
Tripping Di Sebabkan Kilat Dah Cuba Ambil Segala Pendekatan Untuk Mengurangkan Risikonya